雙相鋼三通球閥產品概述
雙相鋼三通球閥是一種主體由SAF2205、SAF2507或ASTM A995 Gr.4A(CD3MN)、5A(CE3MN)、6A(CD3MWCuN)及A182 F51、F53、F55等鑄造或鍛造成型,具有較強的抗硫化物和氯離子腐蝕性能的雙相不銹鋼三通球閥。該閥按流道結構形式分為L型和T型兩種,其中T形三通球閥不僅能實現對介質流向的切換,也可使三個通道相互連通,同時也可關閉任一通道,使另外兩個通道連通,靈活控制管路中介質的合流或分流。本產品可以減少系統中閥門及管配件的使用數量,不僅節省了空間,而且簡化操作。
雙相鋼T型三通球閥的球體不但連通了兩個垂直交叉成90度方向的流體通道,而且其中一條的流體通道完全打通,可以同時連接三個流體通道,形狀呈T型,其主要用于管路中介質的分流、合流及流向的切換,可以使三個通道相互連通或使其中兩個通道連通。該閥可替代L型三通球閥,當替代L形用于切換介質時,兩側中任一通道可作為公共端,連接其它通道,相對于L型的只有中心的通道可作為公共端,T型在方向上的選擇更方便,更具有靈活多樣性。本產品廣泛適用于液體、氣體、粉塵、漿料及含固體顆粒等介質。
雙相鋼三通球閥部件材料
序號 | 部件名稱 | 材料名稱 | ||||
1 | 閥 體 | SAF 2205 | SAF 2507 | A995 Gr.4A | A995 Gr.5A | A995 Gr.6A |
2 | 閥 蓋 | SAF 2205 | SAF 2507 | A995 Gr.4A | A995 Gr.5A | A995 Gr.6A |
3 | 閥 座 | RPTFE、PTFE、TEFLON、NYLON、PPL、PEEK、DEVLON、不銹鋼+硬質合金 | ||||
4 | 閥 桿 | 2205 | 2507 | A182 F51 | A182 F53 | A182 F55 |
5 | 球 體 | 2205 | 2507 | A182 F51 | A182 F53 | A182 F55 |
6 | 填 料 | 柔性石墨環、V形聚四氟乙烯、特氟隆、碳纖維編織 | ||||
7 | 螺 栓 | A193 B8M | A193 B8M | A193 B8M | A193 B8M | A193 B8M |
8 | 螺 母 | A194 8M | A194 8M | A194 8M | A194 8M | A194 8M |
雙相鋼三通球閥技術規范
公稱壓力PN(MPa) | 1.6 | 2.5 | 4.0 | 2.0 | 5.0 |
殼體試驗壓力(MPa) | 2.4 | 3.75 | 6.0 | 3.0 | 7.5 |
高壓液密封試驗壓力(MPa) | 1.76 | 2.75 | 4.4 | 2.2 | 5.5 |
低壓氣密封試驗壓力(MPa) | 0.6 | 0.6 | 0.6 | 0.6 | 0.6 |
設計制造 | GB/T 12237、GB/T 21385、API 6D、API 608、ASME B16.34 | ||||
結構長度 | 按本廠標準Q/CB的規定或訂貨合同要求 | ||||
連接法蘭 | JB/T 79、GB/T 9113、HG/T 20592、HG/T 20615、SH/T 3406、ASME B16.5 | ||||
檢驗試驗 | JB/T 9092、GB/T 26480、API 6D、API 598 | ||||
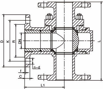
雙相鋼三通球閥外型尺寸
公稱壓力 PN(MPa) | 公稱尺寸 DN(mm) | 尺寸(mm) | ||||||
L | L1 | D | K | R | C-f | n-d | ||
0.6~2.5 (Class150)2.0 | 25 | 180 | 90 | 115 | 85 | 68 | 18-2 | 4-?14 |
32 | 200 | 100 | 140 | 100 | 78 | 18-2 | 4-?18 | |
40 | 220 | 110 | 150 | 110 | 88 | 18-2 | 4-?18 | |
50 | 240 | 120 | 165 | 125 | 102 | 18-2 | 4-?18 | |
65 | 260 | 130 | 185 | 145 | 122 | 18-2 | 4-?18 | |
80 | 280 | 140 | 200 | 160 | 138 | 20-2 | 8-?18 | |
100 | 320 | 160 | 220 | 180 | 158 | 20-2 | 8-?18 | |
125 | 380 | 190 | 250 | 210 | 188 | 22-2 | 8-?18 | |
150 | 440 | 220 | 285 | 240 | 212 | 22-2 | 8-?23 | |
200 | 550 | 275 | 340 | 295 | 268 | 24-2 | 12-?23 | |
250 | 670 | 335 | 405 | 355 | 320 | 26-2 | 12-?25 | |
300 | 720/850 | 425 | 460 | 410 | 378 | 28-2 | 12-?25 | |
注:以上為HG/T 20592-2009標準PN16整體鋼制管法蘭尺寸。如需其他尺寸,請來電咨詢! | ||||||||
雙相鋼三通球閥結構圖

如果你需訂購我廠三通球閥系列產品,咨詢時煩請注明產品型號,如無法提供型號數據,請說明公稱通徑、公稱壓力、閥體材質、內件材質、使用介質及介質溫度等,本產品當采用四閥座的設計時,可以使同一個閥門既具有控制不同流向的功能,又具有開關閥的功能,并且閥門的功能切換操作非常簡單,只要通過閥桿的旋轉即可實現。
網站首頁