不銹鋼三通球閥產品概述
不銹鋼三通球閥是一種主閥體、連接體、閥座、球體和閥桿等主要零部件采用CF8、CF3、CF8M、CF3M、CF8C、310S或304、304L、316、316L、F347、2520等不銹鋼鑄件或鍛件毛坯加工而成,具有較好的耐腐蝕和耐高溫性能的三通球閥。該閥有L型和T型兩種結構型式,其中L形的閥芯是連通了兩個垂直交叉成90度方向的流體通道,形狀呈L型,其主要用于管路中介質流向的切換,中間的通道作為公共端,可連接另外兩端的任一通道(即能夠使相互垂直的兩個流道連通),還可以同時斷開(關閉)所有的流體通道,但是不能用于兩側通道的連通。本產品按密封型式分為軟密封和硬密封兩種,其中軟密封適用于介質溫度200℃以下,且無硬質固體顆粒的氣體或液體,而硬密封則適宜工作溫度不高于700℃的各種苛刻工況。
不銹鋼三通球閥部件材料
序號 | 部件名稱 | 材料名稱 | ||||
1 | 主 閥 體 | CF8 | CF3 | CF8M | CF3M | 310S |
2 | 連 接 體 | CF8 | CF3 | CF8M | CF3M | 310S |
3 | 閥 座 | RPTFE、PTFE、TEFLON、NYLON、PPL、PEEK、DEVLON、不銹鋼+硬質合金 | ||||
4 | 閥 桿 | 304 | 304L | 316 | 316L | 310S |
5 | 球 體 | 304 | 304L | 316 | 316L | 310S |
6 | 填 料 | 柔性石墨環、V形聚四氟乙烯、特氟隆、碳纖維編織 | ||||
7 | 螺 栓 | 304 | 304 | 316 | 316 | 304 |
8 | 螺 母 | 304 | 304 | 316 | 316 | 304 |
不銹鋼三通球閥技術規范
公稱壓力PN(MPa) | 1.6 | 2.5 | 4.0 | 2.0 | 5.0 |
殼體試驗壓力(MPa) | 2.4 | 3.75 | 6.0 | 3.0 | 7.5 |
高壓液密封試驗壓力(MPa) | 1.76 | 2.75 | 4.4 | 2.2 | 5.5 |
低壓氣密封試驗壓力(MPa) | 0.6 | 0.6 | 0.6 | 0.6 | 0.6 |
設計制造 | GB/T 12237、GB/T 21385、API 6D、API 608、ASME B16.34 | ||||
結構長度 | 按本廠標準Q/CB的規定或訂貨合同要求 | ||||
連接法蘭 | JB/T 79、GB/T 9113、HG/T 20592、HG/T 20615、SH/T 3406、ASME B16.5 | ||||
檢驗試驗 | JB/T 9092、GB/T 26480、API 6D、API 598 | ||||
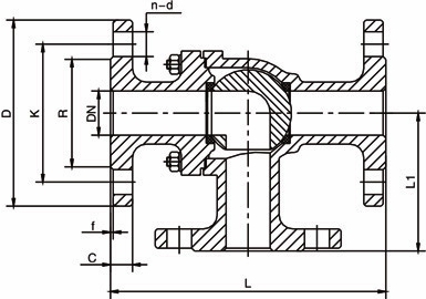
不銹鋼三通球閥外型尺寸
公稱壓力 PN(MPa) | 公稱尺寸 DN(mm) | 尺寸(mm) | ||||||
L | L1 | D | K | R | C-f | n-d | ||
0.6~2.5 (Class150)2.0 | 25 | 180 | 90 | 115 | 85 | 68 | 18-2 | 4-?14 |
32 | 200 | 100 | 140 | 100 | 78 | 18-2 | 4-?18 | |
40 | 220 | 110 | 150 | 110 | 88 | 18-2 | 4-?18 | |
50 | 240 | 120 | 165 | 125 | 102 | 18-2 | 4-?18 | |
65 | 260 | 130 | 185 | 145 | 122 | 18-2 | 4-?18 | |
80 | 280 | 140 | 200 | 160 | 138 | 20-2 | 8-?18 | |
100 | 320 | 160 | 220 | 180 | 158 | 20-2 | 8-?18 | |
125 | 380 | 190 | 250 | 210 | 188 | 22-2 | 8-?18 | |
150 | 440 | 220 | 285 | 240 | 212 | 22-2 | 8-?23 | |
200 | 550 | 275 | 340 | 295 | 268 | 24-2 | 12-?23 | |
250 | 670 | 335 | 405 | 355 | 320 | 26-2 | 12-?25 | |
300 | 720/850 | 425 | 460 | 410 | 378 | 28-2 | 12-?25 | |
注:以上為HG/T 20592-2009標準PN16整體鋼制管法蘭尺寸。如需其他尺寸,請來電咨詢! | ||||||||
不銹鋼三通球閥結構圖

如果你需訂購我廠三通球閥系列產品,咨詢時煩請注明產品型號,如無法提供型號數據,請說明公稱通徑、公稱壓力、閥體材質、內件材質、使用介質及介質溫度等,本產品只能連接相互正交的兩條管道,不能同時保持第三條管道的相互連通,只起分配作用。
網站首頁