電動調節球閥產品概述
電動調節球閥主要由浮動球或固定球球閥和調節型電動執行機構及控制附件組成,其電裝接通電源并輸入直流4mA~20mA模擬量電信號就可調節球閥開度,改變介質流通的截面積,實現閥門的調節。該閥是工業自動化過程控制系統中的一種重要管道壓力元件,它的啟閉件由閥桿帶動,并繞閥桿的軸線作旋轉運動,閥座通道口的變化是與球體角行程成正比例關系。本產品通常用于管道介質的遠程流量調節與控制。
電動調節球閥選用的驅動裝置可直接接收計算機或工業儀表等輸出的4~20mADC或1~5VDC控制信號,其根據閥位反饋信號與設定值比較偏差對執行機構驅動電機進行智能步距調整(PID調節),以實現球閥開度的精確定位,同時輸出4~20mADC的位置反饋信號。本產品與相同規格的閘閥、截止閥相比較,具有啟閉迅速、體積小、重量輕、密封性能好,流體阻力小等特點,特適合介質是粘稠、含顆粒、纖維的場合。
電動調節球閥部件材料
| 序號 | 部件名稱 | 材料名稱 | ||||
| 1 | 閥 體 | WCB | CF8 | CF3 | CF8M | CF3M |
| 2 | 連 接 體 | WCB | CF8 | CF3 | CF8M | CF3M |
| 3 | 球 體 | 2Cr13+氮化 | 304+HF | 304L+HF | 316+HF | 316L+HF |
| 4 | 閥 座 | 2Cr13+氮化 | 304+HF | 304L+HF | 316+HF | 316L+HF |
| 5 | 填料壓蓋 | WCB | CF8 | CF3 | CF8M | CF3M |
| 6 | 填 料 | GRAPHITE、R-PTFE、PTFE、TEFLON、PCTFE | ||||
| 7 | 閥 桿 | 2Cr13 | 304 | 304L | 316 | 316L |
| 8 | 固 定 軸 | 2Cr13 | 304 | 304L | 316 | 316L |
| 9 | 螺 栓 | 35CrMoA | 06Cr19Ni10 | 06Cr19Ni10 | 06Cr17Ni12Mo2 | 06Cr17Ni12Mo2 |
| 10 | 螺 母 | 30CrMoA | 06Cr19Ni10 | 06Cr19Ni10 | 06Cr17Ni12Mo2 | 06Cr17Ni12Mo2 |
| 11 | 電動裝置 | 組合件 | 組合件 | 組合件 | 組合件 | 組合件 |
電動調節球閥技術規范
| 公稱壓力PN(MPa) | 1.6 | 2.5 | 4.0 | 2.0 | 5.0 |
| 殼體試驗壓力(MPa) | 2.4 | 3.75 | 6.0 | 3.0 | 7.5 |
| 高壓液體密封試驗壓力(MPa) | 1.76 | 2.75 | 4.4 | 2.2 | 5.5 |
| 低壓氣體密封試驗壓力(MPa) | 0.6 | 0.6 | 0.6 | 0.6 | 0.6 |
| 設計制造 | GB/T 12237、GB/T 21385、API 6D、API 608、ASME B16.34 | ||||
| 結構長度 | GB/T 12221、API 6D、ASME B16.10 | ||||
| 法蘭尺寸 | JB/T 79、GB/T 9113、HG/T 20592、HG/T 20615、SH/T 3406、ASME B16.5等 | ||||
| 檢驗試驗 | JB/T 9092、GB/T 26480、API 6D、API 598 | ||||
| 控制方式 | 智能調節(4~20mA模擬量信號控制) | ||||
| 電源電壓 | 單相220 VAC、三相380 VAC、遠程24 VDC (50Hz) | ||||
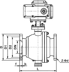
電動調節球閥外型尺寸
| 公稱壓力 PN | 公稱通徑 DN | 外形及連接尺寸/mm | |||||
| L | D | D1 | D2 | b-f | Z-?d | ||
| 16 | 25 | 165 | 115 | 85 | 68 | 18-2 | 4-14 |
| 32 | 180 | 140 | 100 | 78 | 18-2 | 4-18 | |
| 40 | 190 | 150 | 110 | 88 | 18-2 | 4-18 | |
| 50 | 216 | 165 | 125 | 102 | 18-2 | 4-18 | |
| 65 | 241 | 185 | 145 | 122 | 18-2 | 8-18 | |
| 80 | 283 | 200 | 160 | 138 | 20-2 | 8-18 | |
| 100 | 305 | 220 | 180 | 158 | 20-2 | 8-18 | |
| 125 | 356 | 250 | 210 | 188 | 22-2 | 8-18 | |
| 150 | 394 | 285 | 240 | 212 | 22-2 | 8-22 | |
| 200 | 457 | 340 | 295 | 268 | 24-2 | 12-22 | |
| 250 | 533 | 405 | 355 | 320 | 26-2 | 12-26 | |
| 300 | 610 | 460 | 410 | 378 | 28-2 | 12-26 | |
| 350 | 686 | 520 | 470 | 428 | 30-2 | 16-26 | |
| 400 | 762 | 580 | 525 | 490 | 32-2 | 16-30 | |
| 450 | 864 | 640 | 585 | 550 | 40-2 | 20-30 | |
| 500 | 914 | 715 | 650 | 610 | 44-2 | 20-33 | |
| 600 | 1067 | 840 | 770 | 725 | 54-2 | 20-36 | |
| 700 | 1245 | 910 | 840 | 795 | 42-2 | 24-36 | |
| 表中為HG/T 20592-2009標準PN16法蘭連接固定球閥尺寸,如需其他規格參數,請來電咨詢! | |||||||
電動調節球閥結構圖

如果你需訂購我廠電動球閥產品,咨詢時煩請注明規格型號,如無法提供,請告知公稱通徑、公稱壓力、閥體和內件材質、使用介質及工作溫度,電動執行器類型等。本產品電裝有整體調節型和整體調節隔爆型等,如有其他技術要求,請說明。
網站首頁