電動卸灰球閥產品概述
電動卸灰球閥由一個依靠電作為動力源的執行機構和固定球球閥組成,通過電裝驅動閥桿角行程控制閥門的啟閉,以實現對管道內介質的流動和切斷,其開閥時,只需接通電源,并按下閥開按鈕,啟動電動裝置驅動閥桿帶動球體逆時針方向旋轉,從而使閥門開啟,而關閥時則反之。該閥采用單向密封結構設計,僅在球閥的進口端設置一個浮動閥座,并背對流體流向,從而使介質無法直接沖刷密封面,減少了對它的磨損,而在閥的出口端則沒有設置閥座,物料可以很順暢的通過,不易在閥體內腔堆積而卡阻球體運行,所以本產品特適合用在冶金系統高爐卸灰裝置的管道上,并應作垂直位置安裝,以保證爐灰能順暢流卸,使用時必須全開或全關,禁止作節流用。
電動卸灰球閥部件材料
| 序號 | 部件名稱 | 材料名稱 | ||||
| 1 | 閥 體 | WCB | CF8 | CF3 | CF8M | CF3M |
| 2 | 端 蓋 | WCB | CF8 | CF3 | CF8M | CF3M |
| 3 | 上 閥 桿 | 2Cr13 | 304 | 304L | 316 | 316L |
| 4 | 固 定 軸 | 2Cr13 | 304 | 304L | 316 | 316L |
| 5 | 球 體 | A105 | 304 | 304L | 316 | 316L |
| 6 | 閥 座 | RPTFE、PTFE、TEFLON、CF、PPL、PEEK、A105+HCR、SS+HF | ||||
| 7 | 填料壓蓋 | WCB | CF8 | CF3 | CF8M | CF3M |
| 8 | 填 料 | GRAPHITE | GRAPHITE | GRAPHITE | GRAPHITE | GRAPHITE |
| 9 | 螺 柱 | 35CrMo | 304 | 304L | 316 | 316L |
| 10 | 螺 母 | 35CrMo | 304 | 304L | 316 | 316L |
| 11 | 電動裝置 | 組合件 | 組合件 | 組合件 | 組合件 | 組合件 |
電動卸灰球閥技術參數
| 公稱壓力PN(MPa) | 0.25 | 0.6 | 1.0 | 1.6 | 2.5 |
| 殼體試驗壓力(MPa) | 0.375 | 0.9 | 1.5 | 2.4 | 3.75 |
| 高壓密封試驗壓力(MPa) | 0.275 | 0.66 | 1.1 | 1.76 | 2.75 |
| 低壓密封試驗壓力(MPa) | 0.275 | 0.6 | 0.6 | 0.6 | 0.6 |
| 設計制造 | GB/T12237-2021 石油、石化及相關工業用的鋼制球閥 | ||||
| 結構長度 | GB/T12221-2005 金屬閥門 結構長度 | ||||
| 法蘭尺寸 | JB/T 79-2015、GB/T 9113-2010、HG/T 20592-2009等 | ||||
| 檢驗試驗 | GB/T 26480-2011 閥門的檢驗與試驗 | ||||
| 電源電壓 | 單相220V、三相380V、遠程DC24V (50Hz) | ||||
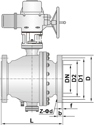
電動卸灰球閥主要尺寸
| 公稱壓力 PN | 公稱通徑 DN | 外形及連接尺寸/mm | |||||
| L | D | D1 | D2 | b-f | Z-?d | ||
| 2.5 ~ 6 | 150 | 400 | 265 | 225 | 202 | 18-3 | 8-18 |
| 200 | 500 | 320 | 280 | 258 | 20-3 | 8-18 | |
| 250 | 600 | 375 | 335 | 312 | 22-3 | 12-18 | |
| 300 | 700 | 440 | 395 | 365 | 22-4 | 12-22 | |
| 350 | 800 | 490 | 445 | 415 | 22-4 | 12-22 | |
| 400 | 900 | 540 | 495 | 465 | 22-4 | 16-22 | |
| 450 | 1000 | 595 | 550 | 520 | 22-4 | 16-22 | |
| 500 | 1000 | 645 | 600 | 570 | 24-4 | 20-22 | |
| 600 | 1067 | 755 | 705 | 670 | 30-5 | 20-26 | |
| 700 | 1200 | 860 | 810 | 775 | 30-5 | 24-26 | |
| 表中未列出的其他規格尺寸,請咨詢汗越閥門技術部! | |||||||
電動卸灰球閥結構圖

如果你需訂購我廠卸灰球閥產品,咨詢時煩請注明產品型號,如無法提供型號數據,請說明公稱通徑、公稱壓力、閥體材質、法蘭執行標準、電動執行器類型,是否有其他技術要求等,我公司可按客戶需求進行定制。
網站首頁